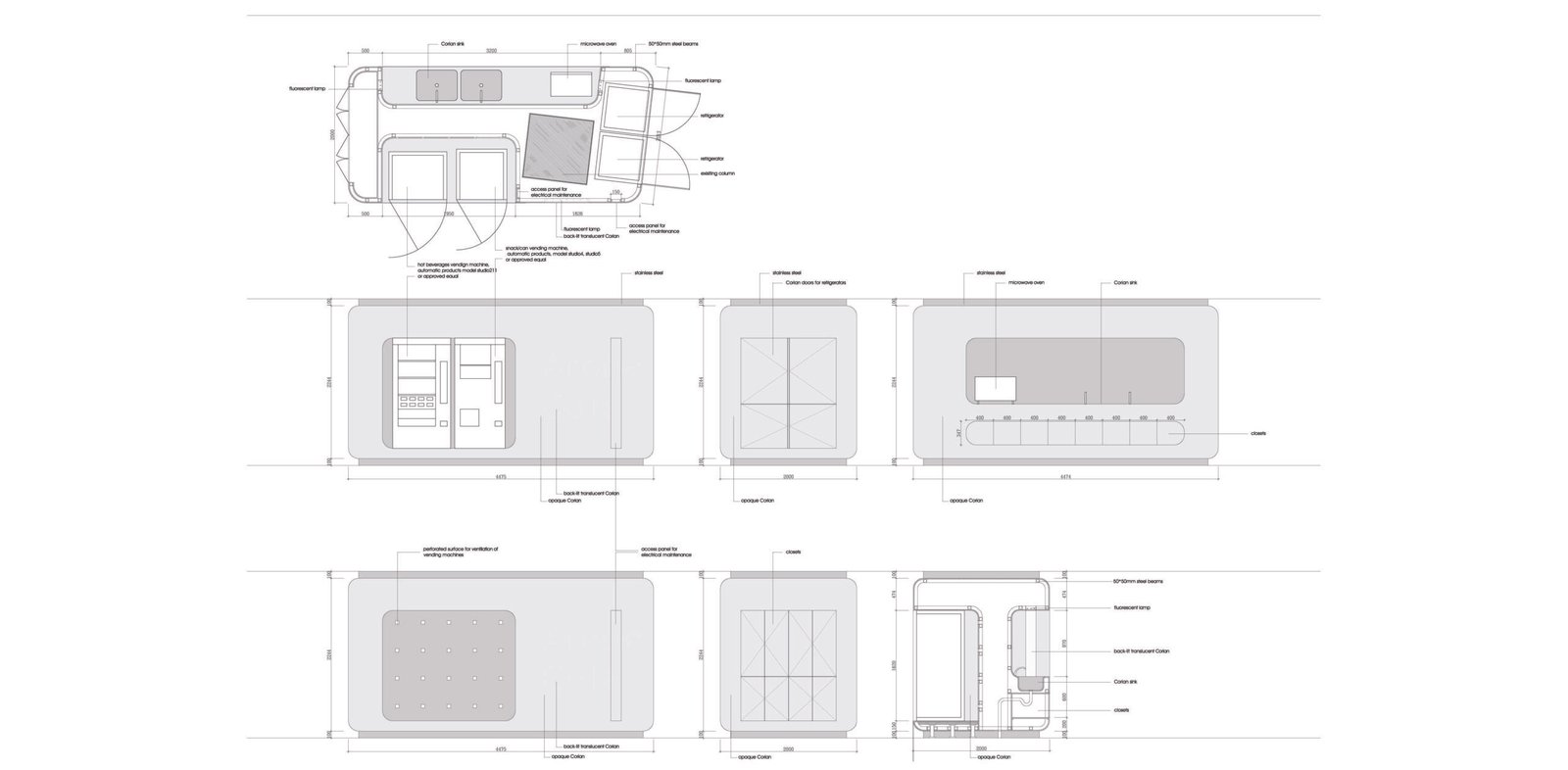
Interior
Self service kitchenette Beirut