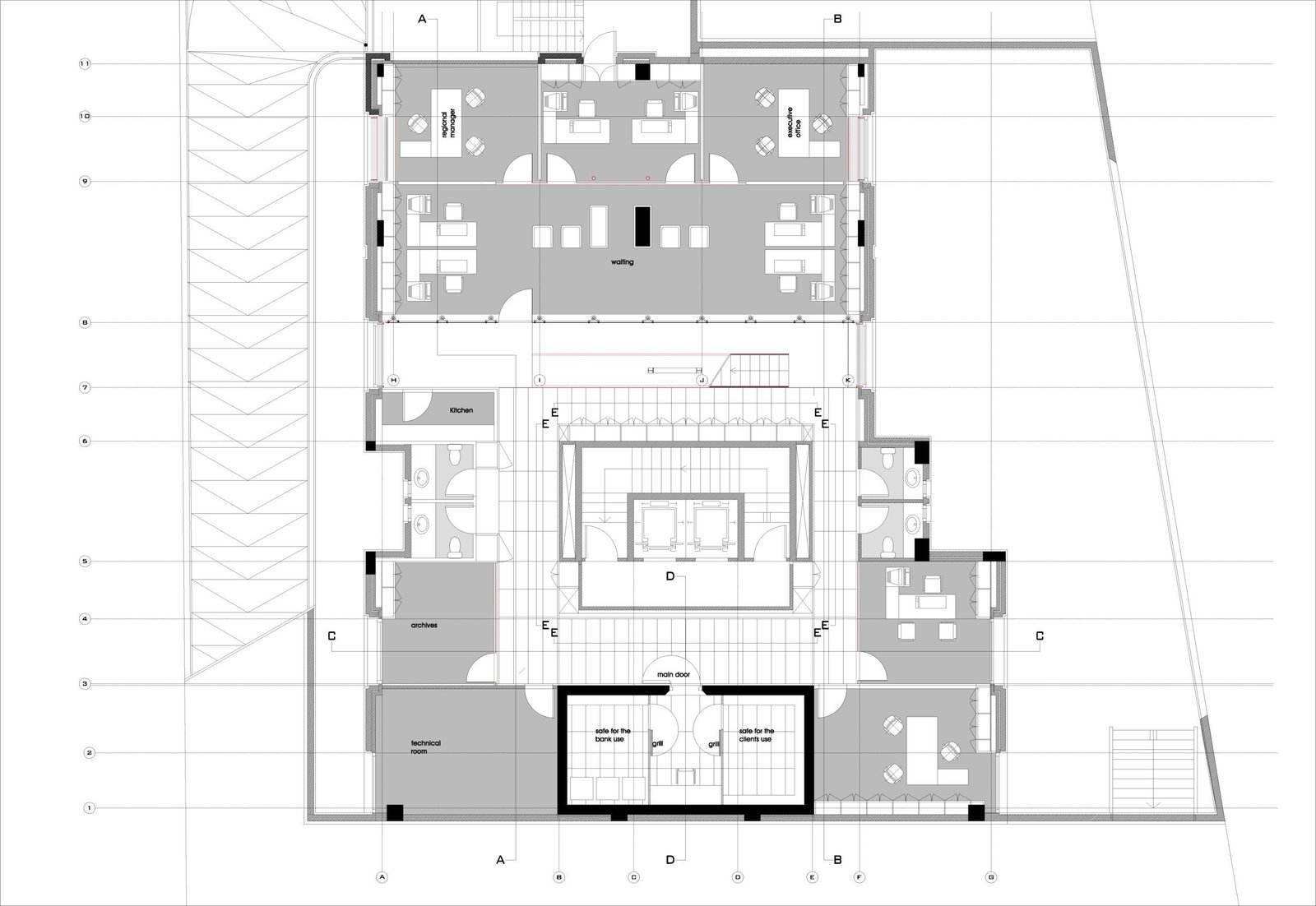
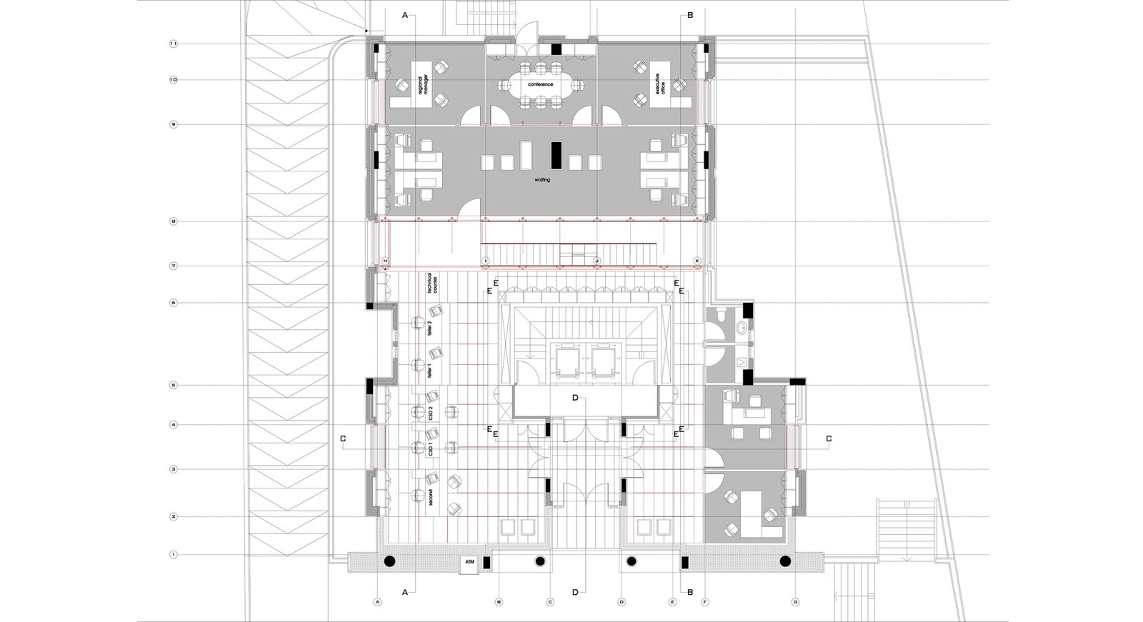
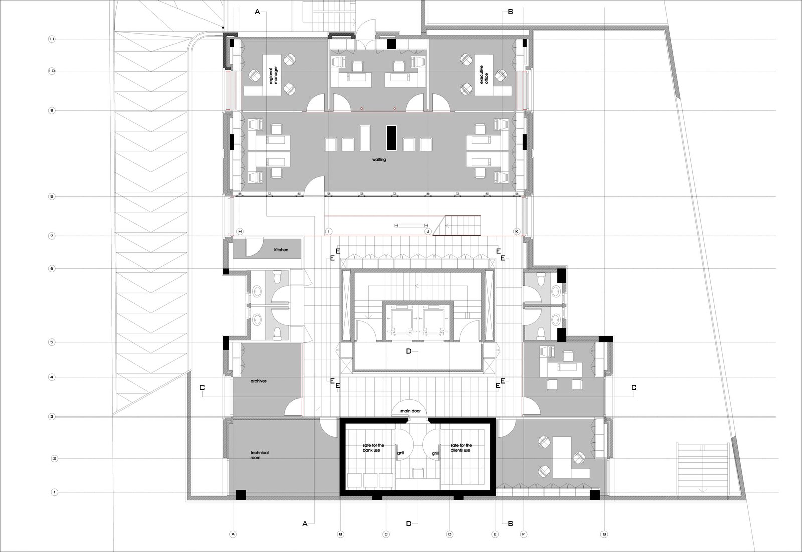
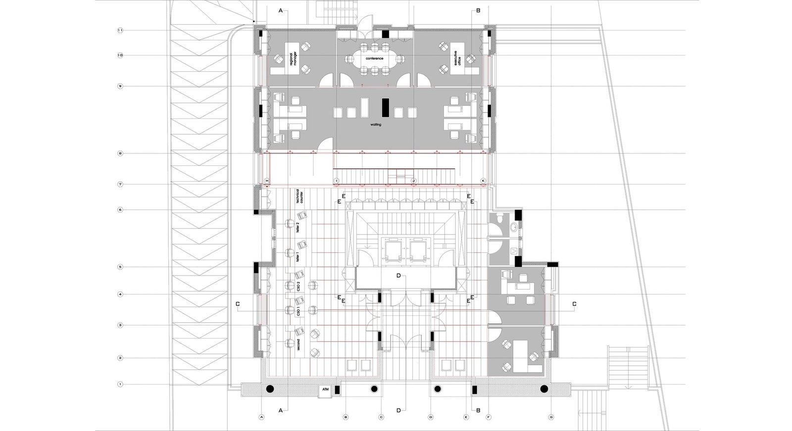
Bank branch

First floor plan

Bank branch

The two-storey bank branch is defined by its dynamic interior architecture.

Once at reception, visitors are greeted by a public space that loop around the building core which is connected by a bridge and a linear staircase leading to the lower floor, creating opportunities for personal interactions.

This central doubled-volume internal spine at the middle of the space separates the administrative area from the public area.

The administrative offices, including CSO offices are organized along the periphery of the bank’s branch, in order to make room for an open teller area. Seamless, floor-to-ceiling clear bolted glass walls separate the public areas from the administrative area, maintaining a shared environment, and allowing natural light to penetrate.

Contributing to the contemporary appearance, wood aluminum panels and clear bolted glass clad the bank’s rectilinear space.

Closets are integrated into the central core structure, they are used to hide and integrate most of the required systems and devices.

The rectilinear custom tellers’ desk is designed as wood blocks made from molded plywood, topped by an extruded stainless steel profile.

The balanced use of materials and textures, the unified modeling language and the geometrical aspect define a distinct, and contemporary space.

Stairs

Bank branch

Glass & Steel - Section & Details

Bank branch

Glass & Steel - Sections

Bank branch

Wood work - Sections

Bank branch

Counter plan & Details

Bank branch

Back counter

Bank branch

Counter elevations & sections

Bank branch