Office Beirut – Front desk

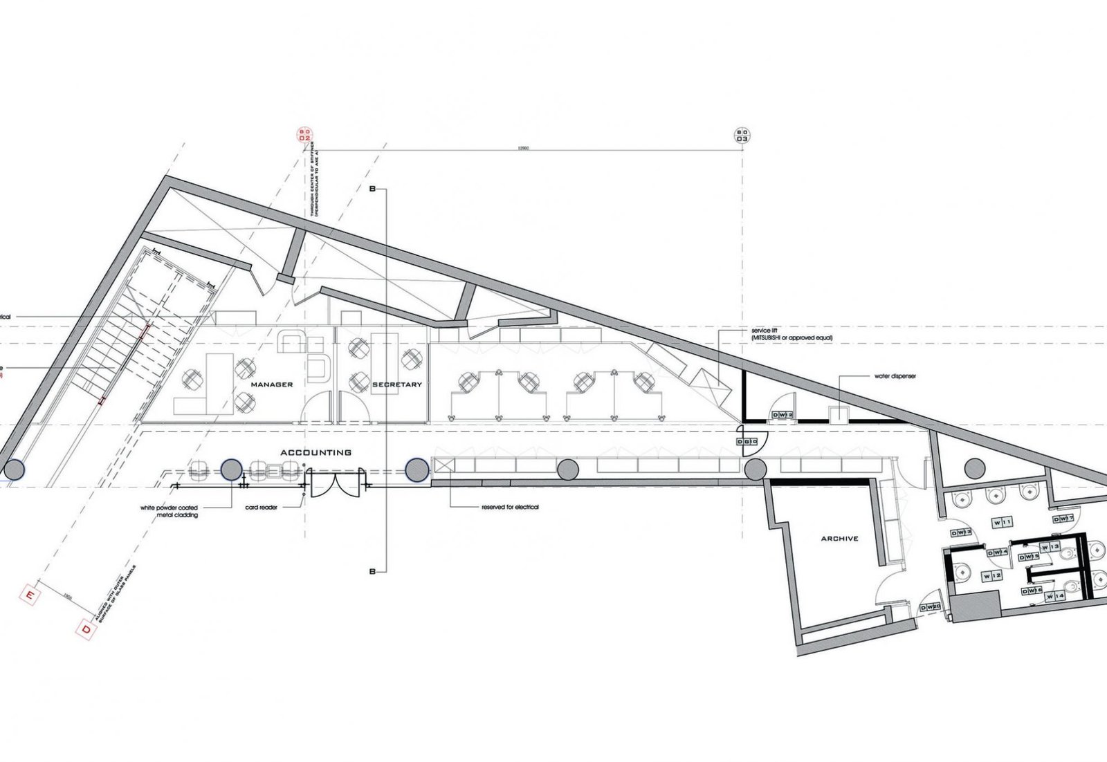
L1 floor level

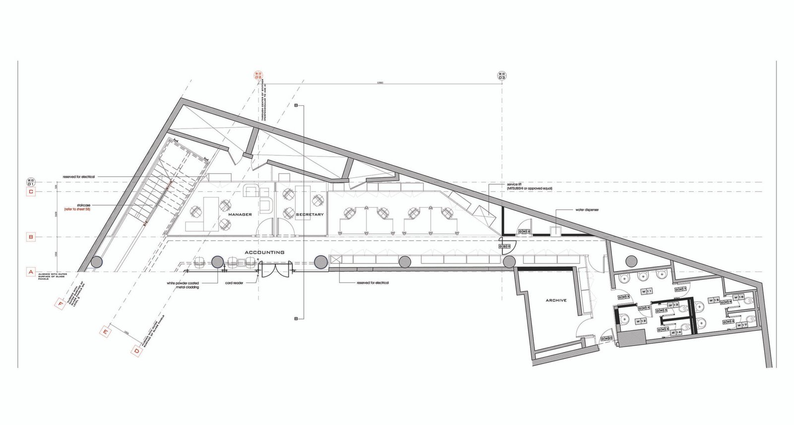
Front desk office

L0 floor level

Front desk office

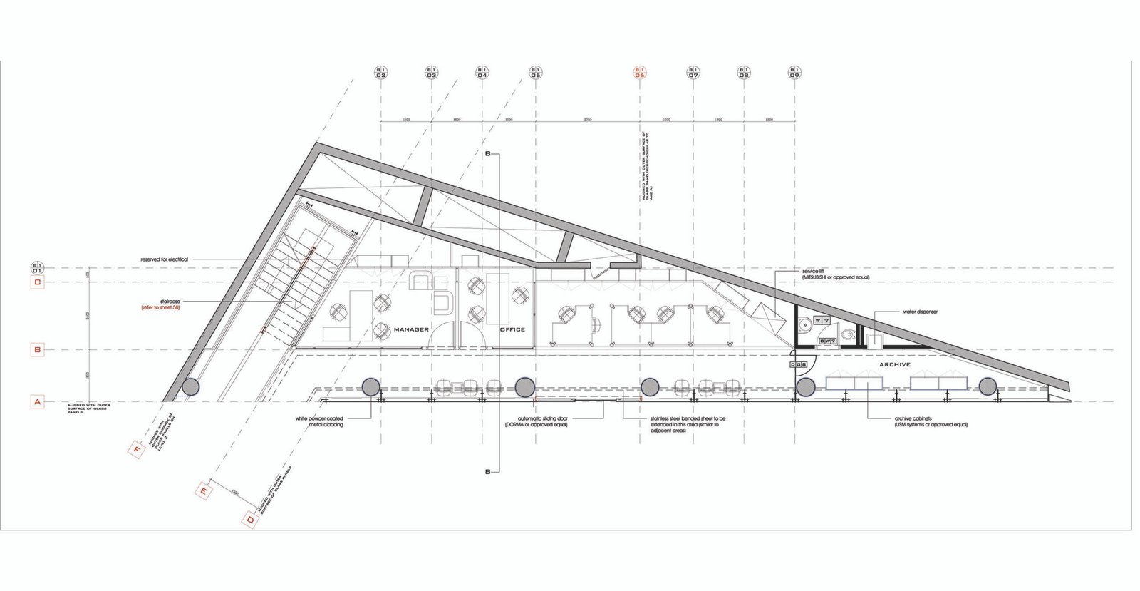
Flooring layout L2

Front desk office

Celing layout L2

Front desk office

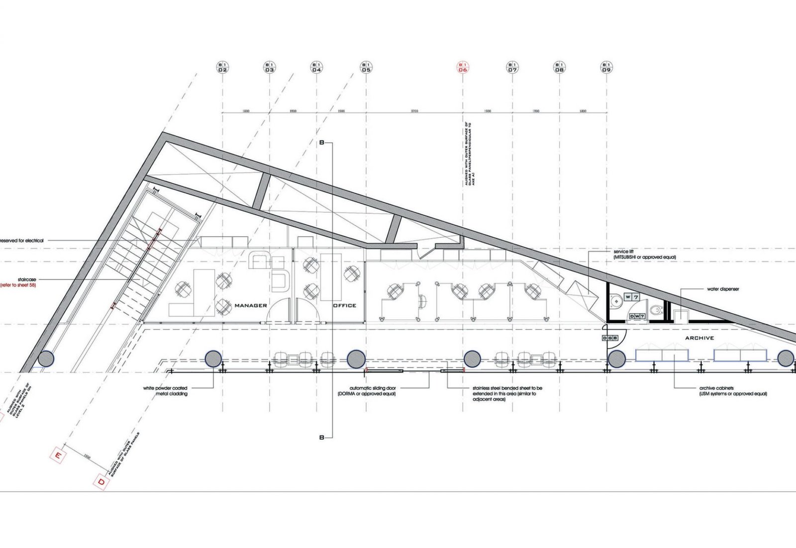
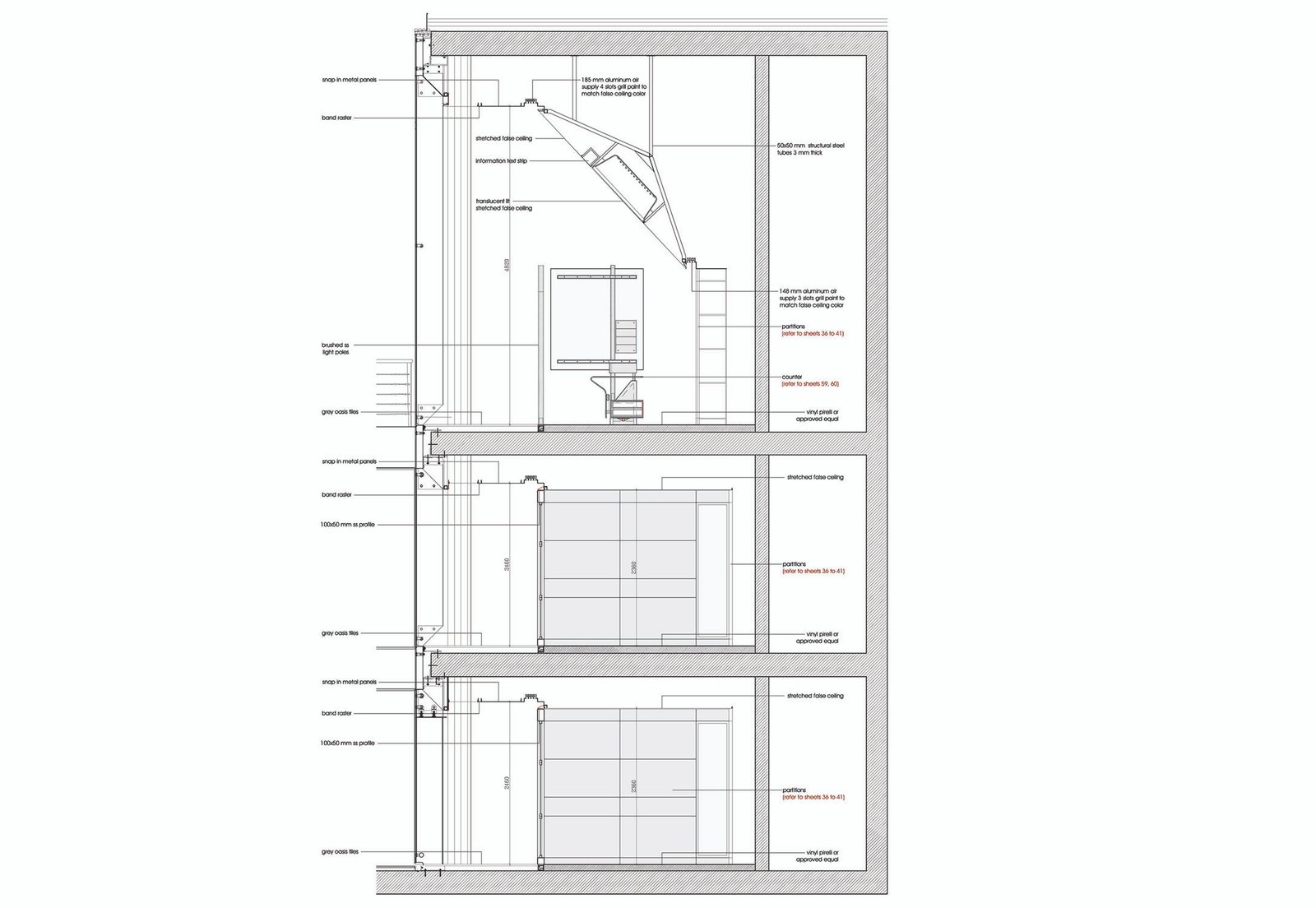
Section

Front desk office

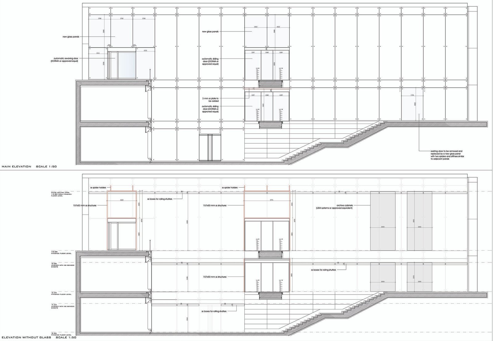
Elevations

Front desk office