CEO office Beirut

Conference room

ceo office
Shades of grey and white play against black and stainless steel furniture inside the office space, with colored variations of lights coming down from the stretched ceilings.

Moveable furniture and partition walls are incorporated so that the office space can easily be reconfigured, by a combination of necessity and the intent of creating a flexible space which could take on different roles at different time.

Due to privacy and sun protection in urban areas, curtains can be closed to gently deflect prying eyes, or opened to provide a feeling of expansiveness, and at night turns into a glittering veil illuminated by the interior lighting.

CEO office

ceo office

Waiting area

ceo office

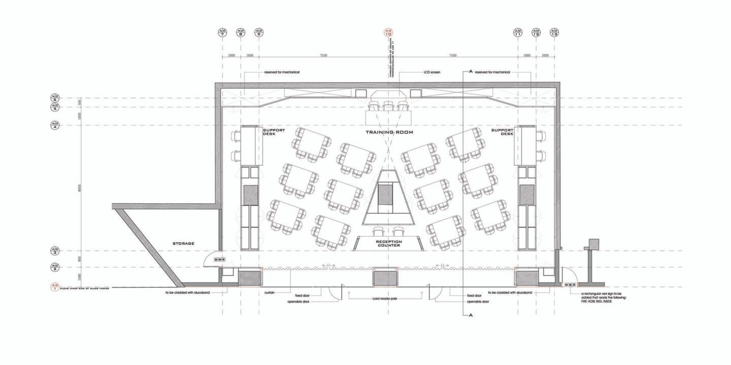
L2 floor layout

ceo office

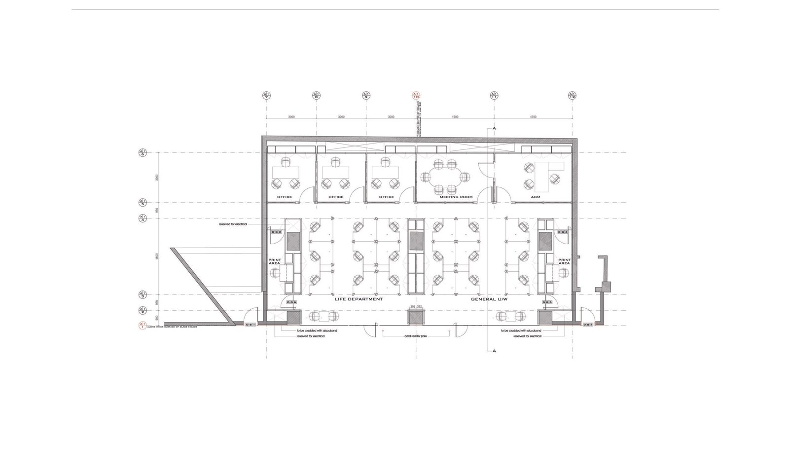
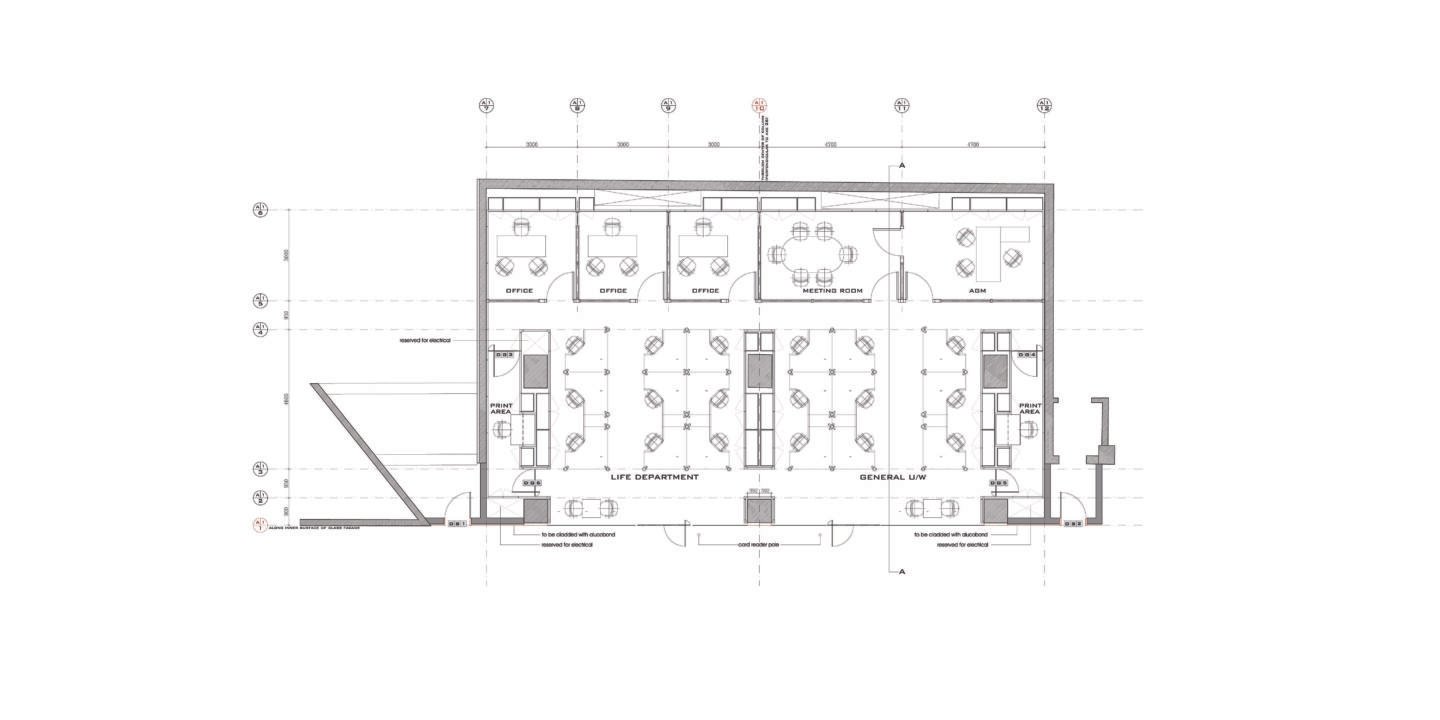
L1 floor layout

ceo office

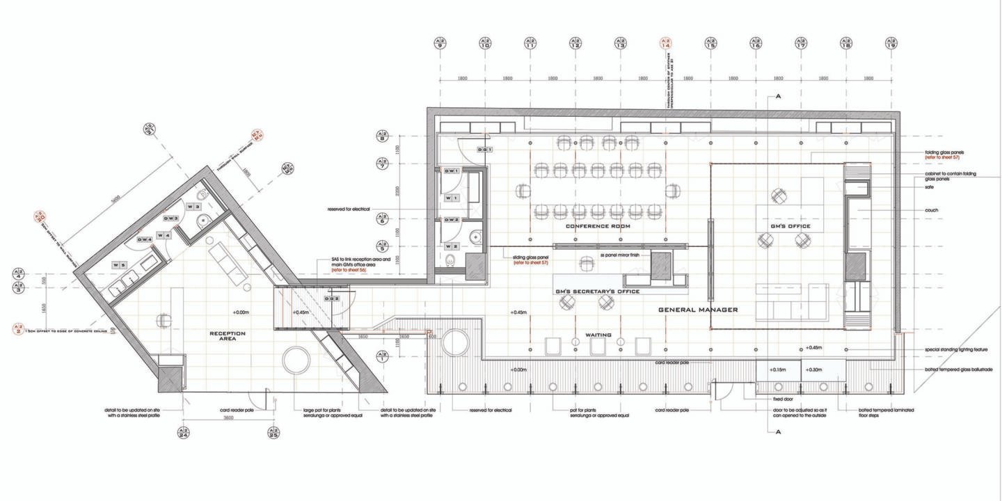
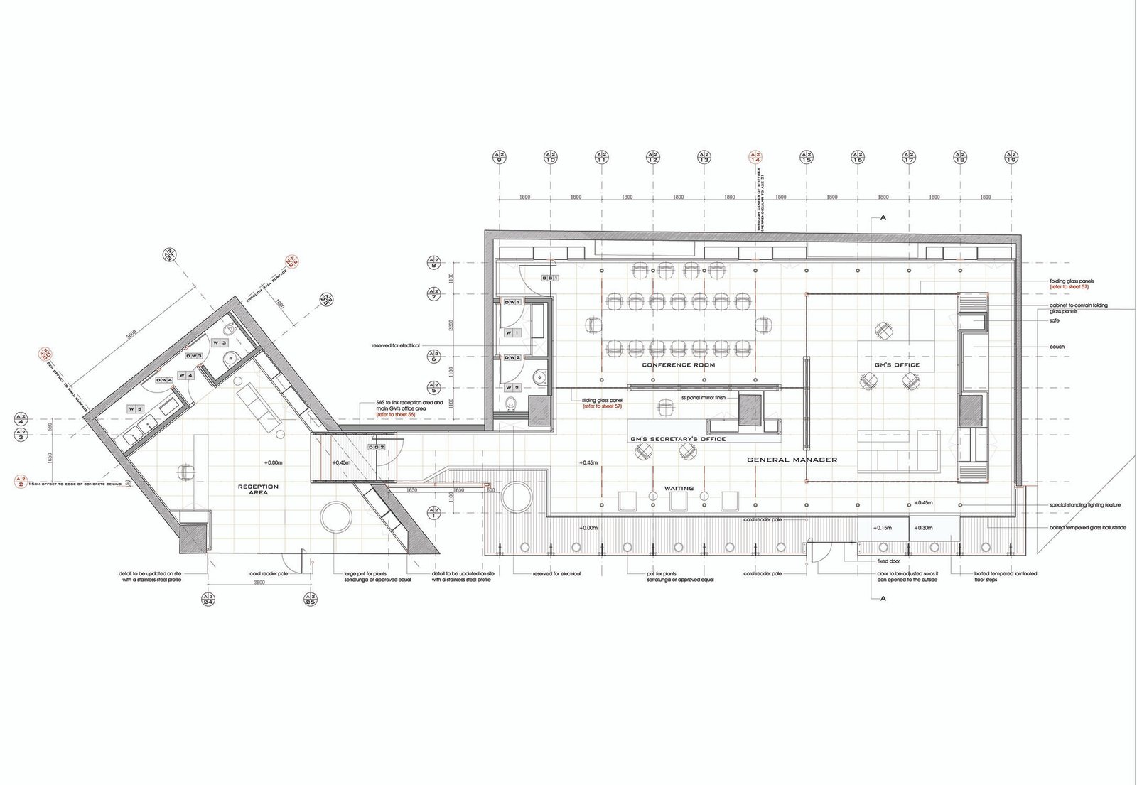
L0 floor layout

ceo office

Section

ceo office

SAS plan & section

ceo office

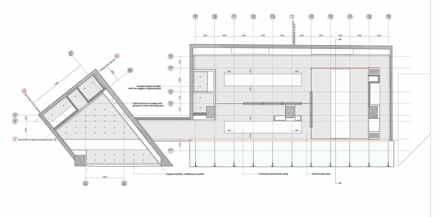
False celing - L2

ceo office

False celing - L0

ceo office

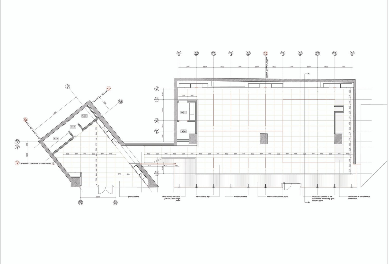
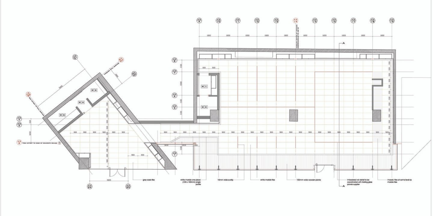
Flooring layout - L2

ceo office