Office building entrance

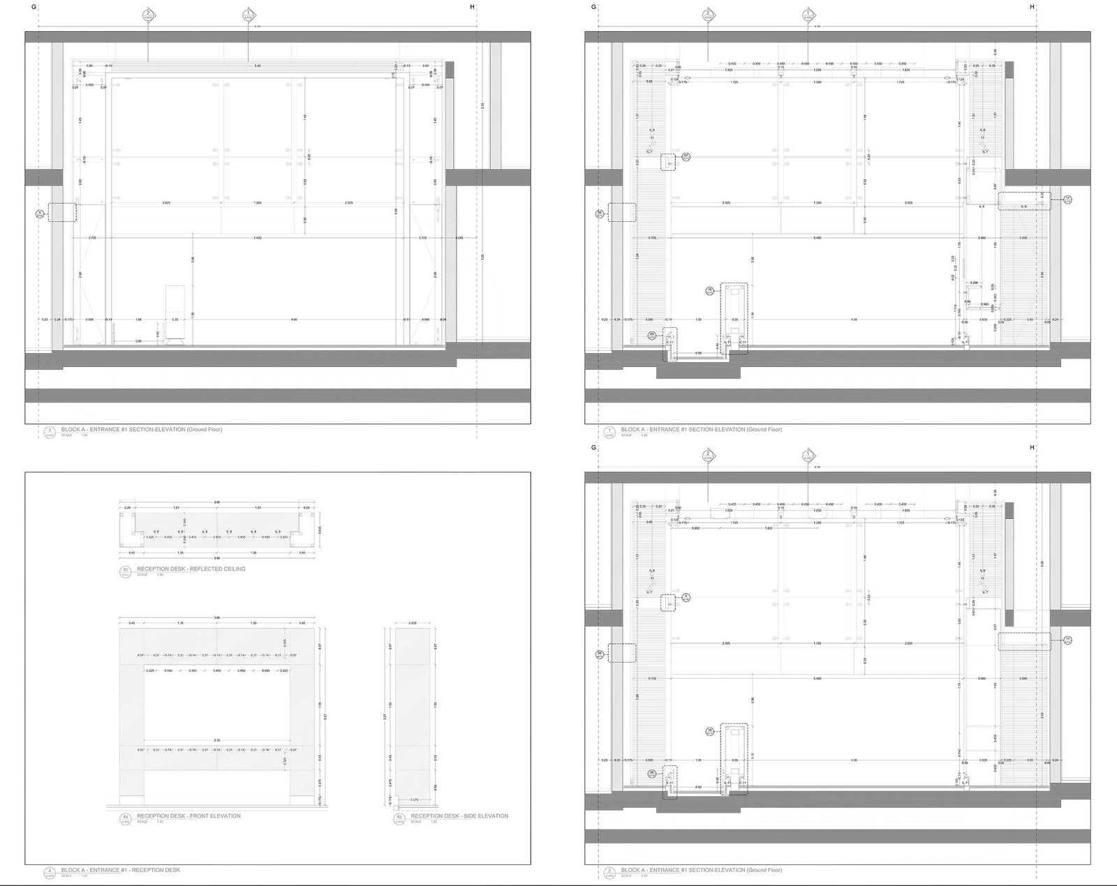
The interior space of the office building entrance is an extension of the exterior. The space is enclosed by two superimposed layers of glass and wood, the glass is rendered partially opaque by a white satin finish at the top, and very subtly graded to transparent at the bottom showing behind the timber cladding layer.

Floor plan & Ceiling

Office building entrance

Longitudinal Sections

Office building entrance

Sections

Office building entrance